Målselvgata 20

Tromsø

Soverom
5 stk
Størrelse
264m2 (BRA-i)
Prisantydning
6 990 000,-

Målselvgata 20 - Innholdsrik hel tomannsbolig fra 1936 som er tilbygd/ombygd i 1957/1981. Eiendommen ha ren flott beliggenhet i et rolig og barnevennlig område, med fin utsikt mot Fjellheisen, sundet og fastlandet. Boligen har behov for større oppg raderinger utvendig og innvendig. Boligen byr på ca. 264 kvm og går over tre plan med to leiligheter med hver sin inngang. Første plan med entre, soverom, bad/wc, vaskerom, stue og kjøkken. Øvre plan med 3 soverom, bad/wc/vaskerom, stue og kjøkken, samt bod og inngang i første plan. Kjeller med flere boder, bad/wc og utgang til uteområdet Her bor du sentralt med kort vei til barnehager, skoler, butikker, busstopp og til Tromsø sentrum Høydepunkter: To leiligheter. Takoverbygd balkong på ca. 20 m2. Terrasse på ca. 32 m2. Garasje. Carport. Velkommen til visning! ... Les mer

Prisantydning: 6 990 000,-
Boligtype: Enebolig
Eierform: Selveier
Internt bruksareal: 264m2 (BRA-i)
Eksternt bruksareal: 41m2 (BRA-e)
Balkong/Terrasse: 56m2 (TBA)
Soverom: 5
Byggeår: 1936
Energimerking: G
Tomteareal: 493m2 (eiet)

Se full beskrivelse

Eiendom Målselvgata 20
9007 Tromsø
Oppdragsnummer 52-25-0540
Totalvurdering Målselvgata 20 - Innholdsrik hel tomannsbolig fra 1936 som er tilbygd/ombygd i 1957/1981. Eiendommen ha ren flott beliggenhet i et rolig og barnevennlig område, med fin utsikt mot Fjellheisen, sundet og fastlandet. Boligen har behov for større oppgraderinger utvendig og innvendig

Boligen byr på ca. 264 kvm og går over tre plan med to leiligheter med hver sin inngang. Første plan med entré, soverom, bad/wc, vaskerom, stue og kjøkken. Øvre plan med 3 soverom, bad/wc/vaskerom, stue og kjøkken, samt bod og entré i første plan. Kjeller med flere boder, bad/wc og utgang til uteområdet

Eiendommen ligger fint til i et veletablert, rolig og attraktivt boligområde på sørsiden av Tromsøya. Her bor du sentralt med kort vei til barnehager, skoler, butikker, busstopp og gangavstand til Tromsø sentrum.

Høydepunkter:

- To leiligheter
- Takoverbygd balkong på ca. 20 m2
- Terrasse på ca. 32 m2
- Garasje
- Carport

Velkommen til visning!
Matrikkel Gnr. 200 bnr. 867 i Tromsø kommune
Beliggenhet Eiendommen ligger fint til i et veletablert, rolig og attraktivt boligområde på sørsiden av Tromsøya.Det er gangavstand til barneskole, barnehager, kulturskole og aktivitetstilbud. Det er nærhet til flere dagligvarebutikker, og nærmeste dagligvarebutikk er i Kiwi, Balsfjordgata. Det er gode bussforbindelser med hyppige avganger som enkelt tar deg rundt i Tromsø. Det er kort vei til Tromsø sentrum med rikt utvalg av butikker, forretninger og yrende byliv.

Øvrige avstander:
Dagligvarebutikk: Ca. 400 meter.
Nerstranda kjøpesenter: Ca. 1 km.
Telegrafbukta: Ca. 1,5 km.
Langnes handelspark: Ca. 5 km.
UNN/UiT: Ca. 6 km.
Adkomst Via offentlig vei. Det vil bli skiltet med visningsskilter ved fellesvisning.
Tomt/beskaffenhet Eiet tomt på ca. 493 kvm.
Parkering i carport, i garasje og på egen tomt. Tomten er opparbeidet med plen, prydbusker/beplantning og gruset innkjørsel/gårdsplass.
Oppgitt tomteareal iht. offentlig registre.
Deler av garasjen er plassert inne på naboeiendom, Målselvgata 18.
Boligtype, og eierform Selveier Tomannsbolig
Byggeår 1936
Areal Bruksareal: 305 kvm, BRA-i: 264 kvm , BRA-e: 41 kvm , TBA: 56 kvm
(BRA-i) Bruksarealet av boenheten innenfor omsluttende vegger. Bruksenheten kan bestå av flere boenheter. Alle selvstendige boenheter kategoriseres som BRA-i.

(BRA-e) Bruksarealet av alle rom som ligger utenfor boenheten(e), men som tilhører denne. Eks: arealer som har adkomst fra fellesarealer eller utenfra, som kjellerstuer, gjesterom, hobbyrom og boder som tilhører boenheten.

(BRA-b) Bruksarealet av innglassede balkonger, verandaer og altaner som tilhører boenheten.

(TBA) Arealet av terrasser, altaner, verandaer og åpne balkonger som er tilknyttet boenheten.

Megler har ikke kontrollmålt arealene
Antall rom (evt. senger) Oppholdsrom: 2, Soverom: 5, Bad: 3, Antall rom: 7
Byggemåte Hel tomannsbolig fra ca. 1936 som har normal standard men bærer preg av manglende vedlikehold. Boligen er tilbygd i 1957 og 1981.

Taktekking
Pappshingel. Årstall: 2015
Type undertak: Rupanel. Årstall: Ukjent

Elektrisk anlegg
El-skap med automatsikringer og målere plassert i begge inngangsparti.

Nedløp og beslag
Renner og nedløp av plast og lakkert metall.

Veggkonstruksjon
Veggene har trekonstruksjon av ukjent utførelse. Yttervegger av tømmerkonstruksjon og delvis bindingsverk av tre. Fasade/kledning har liggende og stående bordkledning.

Takkonstruksjon/Loft
Saltak takkonstruksjon av tre. Undertak av rupanel og taktroplater.
Loftskillet er isolert med ca. 10 cm isolasjon. Adkomst til kaldloftet via luke i himling i 2. etasjen (gang). Det er ikke etablert gulv på store deler av kaldloftet, noe som begrenser muligheten for fullstendig inspeksjon av loftets konstruksjoner

Dører
Hovedinngangsdører: Takoverbygget isolerte dører med 3-lags isolerglassfelt og elektrisk kodelås.
Terrassedører, soverom/vaskerom: Isolerte tredører med 2-lags isolerglassfelt fra 1981.
Terrassedører, stue: Isolerte tredører med 3-lags isolerglassfelt (ukjent produksjonsår). Inngangsdør, kjeller: Fabrikkmalt isoler dør.

Vinduer
Malte vinduer av tre med 2-og 3-lags isolerglass fra forskjellige tidsperioder. Vinduer med koblet glass i carport

Utvendige trapper
Trapper og rampe av tre mellom gårdsplass og hage.
Trapp av tre til repos foran inngangsdører i 1. etasjen. Trapp av tre mellom hage og terrasse.

Andre utvendige forhold
Bærende konstruksjon/søyle mot nordvest.

Etasjeskille/gulv mot grunn
Etasjeskille av trebjelkelag og støpt betonggulv mot grunn.
Målt avvik i 1. etasjen (stue) og kjelleretasje (stue)

Radon
Eiendommen ligger i ett område som i følge av NGU radonkart er betegnet med aktsomhetsgrad: Moderat til lav

Pipe og ildsted
Boligen har ett innvendig pipeløp som strekker seg fra kjelleretasje og over tak. Type: Mursteinspipe fra byggeår med nytt røykrør. Pipeløpet har to fastmonterte ildsteder. Sotluke montert i kjelleretasje (bod).

Innvendige trapper
Malt tretrapp som strekker seg fra kjelleretasjen til 1. etasjen. Innetrinn har laminat med kantlist. Lakkert tretrapp som strekker seg fra inngangsparti til 2. etasjen. Innetrinn kledd med teppefliser

Innvendige dører
Malte profilerte dører

Vannledninger
Vannledninger av kobber. Hovedstoppekran plassert i uinnredet del av kjeller (bod)

Avløpsrør
Synlige avløpsrør av plast

Ventilasjon
Boligen har naturlig ventilasjon via ventiler i yttervegger, vinduer og luftekanal i pipen. Avtrekksvifte plassert på kaldloft.

Varmtvannstank
Varmtvannstank på ca 200 liter fra 2010, plassert i kjelleretasjen (innkasset vegg på bad). Varmtvannstank på ca 200 liter av merket Høiax plassert i kjelleretasjen (gang)

Elektrisk anlegg
Elskap med automatsikringer og målere plassert i begge inngangsparti

Fuktsikring og drenering
Drenering fra ukjent årstall med ukjente masser rundt boligen. Taknedløpene føres ned under bakken i rør, enkelte ut over terreng.

Grunnmur og fundamenter
Grunnmur/kjelleryttervegger av naturstein, betong og lettklinkerblokker. Yttervegger i kjelleretasjen er kledd igje innvendig

Forstøtningsmurer
Forstøtningsmurer av betong mot innkjørsel/carport. Forstøtningsmur av ukjent materiale i delnivåer av hage.

Terrengforhold
Eiendommen ligger i et skrånende terreng, hellende mot sørøst

Garasje - Enkel beskrivelse:
Utvendig ståendekledning og saltak med profilerte metallplater. Enkel garasjeport og inngangsdør av tre, 2-lags isolerglass og innlagt strøm.

Alle bygningsopplysninger er hentet fra tilstandsrapport og det henvises til denne for ytterligere opplysninger
Ferdigattest Det foreligger ikke ferdigattest eller midlertidig brukstillatelse på opprinnelig bygg i kommunens arkiv. Det er ikke uvanlig at dette mangler på bygninger oppført på denne tiden. For bygninger oppført før gjeldende plan- og bygningslov trådte i kraft i 1965, var det Lov om bygningsvesen som var gjeldende. Boligen står registrert som tatt i bruk i matrikkelrapport.

Det foreligger midlertidig brukstillatelse på ombygging/utvidelse av eksisterende bolig datert 15.06.1982. I følge denne var det gjenstående arbeider utvendig, bl.a. verandaer, fullføring av garasje/carport med brannsikring B-30, fullføring av hovedinngangstrapp og maling/beising av utvendig panel.
At slik attest eksisterer gir ingen garanti for at det ikke er utført arbeid på boligen som ikke er byggmeldt eller godkjent.

Det foreligger godkjente bygningstegninger datert 29.05.1981, 24.01.1957 og januar 1936.
I ettertid er det blitt gjort noen bruksendringer, og disse er som følger:
2. etasje:
- Innhuk (ca. 2 kvm) i stuen fremkommer ikke på tegning.
- Innredning av rom stemmer med dagens bruk.
1. etasje:
- Soverom mot vest er omgjort til to soverom.
- "Matbod 5,3 kvm" inngår i dag som del av vaskerom og har adkomst via baderom.

Kjelleretasje:
- Tilbygd del mot øst fremkommer ikke på tegninger.
- Rommene "Brennsel" og "Vaskerom" er omgjort til soverom.
- Toalettrom er fjernet.
- "Brennsel" og "Matboder" er omgjort til kjellerstue.
Fasade:
- Garasje eksisterer ikke slik tegning illustrerer (kun enkel carport mot nord).
- Det er satt inn vindu på vestsiden av 1. etasjen (nytt soverom).
- Terrasse er utvidet (ca. 16 kvm) mot sørsiden av 1. etasje.
- Størrelse/plassering av enkelte vinduer/dører stemmer ikke med tegning(er).

Kjøper overtar ansvar og risiko vedrørende disse forhold.
Innhold BRA-i består av:
Kjelleretasje: Bod/gang, verksted/bod, kjellerstue m/trapp, kott, soverom, bad/wc
2.etasje: Stue/kjøkken, bad/vaskerom, gang, soverom 1, soverom 2, soverom 3
1.etasje: Entré/gang, entré 2 (2. etasje), gang, kjøkken, soverom 1, soverom 2, stue, bad/wc, vaskerom

BRA-e består av: Redskapsbod

Redskapsbod med utvendig adkomst fra kjelleretasje = 12 m2 (BRA-e).

Gode oppbevaringsmuligheter:
* Garderobeskap i gang i andre plan
* Vaskerom med skapplass
* Bod med adkomst fra entreen til andre plan
* Garderobeskap på soverom i første plan
* Skyvedørsgarderobe på hovedsoverom i andre plan
* Flere kjellerboder

Tekniske utstyr/generelt:
* Nydelig utsikt
* En hel tomannsbolig med to leiligheter med egen inngang
* Det er dør mellom enhetene, mulig å bruke hele boligen selv
* Kjeller med utgang til uteområdet
* To sikringsskap
* To vedovner
* Garasje
* Carport
* Takoverbygd balkong på ca. 20 kvm i 2. etasje
* Stor terrasse på ca. 36 kvm i 1. etasje
* Bad i hver etasje
* 4 soverom
* To stuer og to kjøkken

Oppgraderinger/vedlikeholdsarbeid:
2025 - Kjøkkenventilator 1. etasje
2023 - Stekeovn i 1. etg
2016 - Innredning av kjellerstue
2016 - Pusset opp trappen ned til kjeller
2016 - Satt inn gulvvarme og nytt gulv i kjellerstue
2015 - Nytt yttertak /shingel
2010 - Kjøkken i første plan
2010 - Varmtvannsbereder
1981 - Tilbygd carport
Standard Hel tomannsbolig fra ca. 1936 med to leiligheter, som er ombygd og tilbygd i 1957 og 1981. Boligen fremstår som normalt vedlikeholdt men har anses å ha behov for oppgraderinger og vedlikeholdsarbeid for å tilfredsstille dagens moderne standard. Det er egen inngang til leilighetene og det er også dør mellom enhetene, som gjør det enkelt å bruke hele boligen selv dersom man har behov for mer plass.

E N T R E
Takoverbygd inngangsparti med to innganger i første plan. Det er også utgang fra bod i kjelleretasjen.

Inngang til leilighet i første plan har entré og gang med gulvvarme og ellers god plass til garderobeløsning. Ytterdør med kodelås. Gangen har adkomst til trapperom med trapp ned til kjelleren. Inngang til leilighet i øvre plan er i første plan og har entré med adkomst til bod og en innvendig trapp opp til andre plan. Romslig gang i andre plan med garderobeløsning.

S T U E & K J Ø K K E N
Boligen ha to stuer og to kjøkken.

Stue i første plan med store vinduer som gir rikelig med lys inn. Vedfyring som gir behagelig varme. Stuen har gulvbelegg, gulvvarme og malte veggoverflater. Fra stue i første plan er det utgang til en stor terrasse som strekker seg langs to sider av boligen. Terrassen er på ca 36 kvm og har god plass til hagemøbler og grill. Det er trapp fra terrassen og ned til hagearealet.

Stue i andre plan med store vindusflater som bevarer den flotte utsikten! Stuen er av god størrelse og fremstår som lys og innbydende. Det er vedfyring som gir behagelig varme. Stuen er i åpen løsning mot kjøkkenet og har areal på ca 50 kvm, noe som gir en god romfølelse og mulighet for å møblere generøst i flere soner. Fra stue er det utgang til en stor balkong med fantastisk utsikt mot Tromsøysundet og fastlandet.

Det er rom i kjeller som er innredet som kjellerstue, men er ikke godkjent rom til varig opphold. Kjellerstuen har gulvvarme og god plass til sofa og tv-møbler

Kjøkken i første plan (ca. 2010) med lyse fronter, laminat benkeplate med nedfelt oppvaskkum i stål. Kitchenboard på vegg over benk. Integrert stekeovn fra ca. 2023 og induksjon platetopp. Ventilator fra 2025 over kokesone med avtrekk ut.

Kjøkken i andre plan fra ca. 2008 og er i åpen løsning mot stue. Kjøkkenet har lyse slette fronter, laminat benkeplate med nedfelt oppvaskkum i stål og fliser over benk. Praktisk kjøkken med gode arbeidsflater og rikelig med skap- og benkeplass. Belysning under overskap. Det er plass til hvitevarer. Ventilator over kokesone. Kjøkkenet i øvre plan har en god utforming og her er det også plass til spisebord.

S O V E R O M
Boligen har fire godkjente soverom. Det er soverom i første plan med garderobeskap. Det var opprinnelig et stort soverom, som er delt i to med lettvegg (ikke omsøkt). Det er rom i kjeller som nåværende eier benytter som soverom, men er ikke godkjent som soverom på grunn av manglende rømningsvindu.

Det er tre soverom i andre plan. Hovedsoverom med skyvedørsgarderobe. Soverom 2 og 3 med garderobeskap.

B A D / W C / V A S K E R O M
Det er tre bad/wc i boligen og separat vaskerom.

Bad/wc i første plan med gulv av vinylbelegg, Badet har vegghengt wc, baderomsinnredning med heldekkende servant og speilskap med lys. Dusjhjørne med glassdører. Badet har varmekabler, men disse er defekt. Badet må påregnes oppgradert. Det er avtrekk med elektrisk styrt vifte.

Det er adkomst til vaskerom fra badet, og det er også skyvedør mellom vaskerom og entreen til andre plan. Vaskerom med vinylbelegg på gulv og våtromsplater på veggene. Videre har vaskerommet takhengt tørkestativ, skap, skyllekum og opplegg for vaskemaskin. Naturlig ventilering. Fra vaskerommet er det utgang til terrasse.

Bad i kjeller har malt gulv og vegger med malt strie og våtromsplater. Badet har vegghengt wc, baderomsinnredning med servant og dusjkabinett. Naturlig ventilasjon via ventil i luftekanal på pipen. Ukjent slukløsning. Badet må totalrenoveres. Fra badet er det adkomst til en av bodene, hvor det tidligere var badstue.

Bad i andre plan med malt vinylbelegg på gulv og våtromsplater på veggene. Badet har vegghengt wc, baderomsinnredning med heldekkende servant, speil og overskap med lys. Videre har badet steamdusj og opplegg for vaskemaskin. Mekanisk avtrekk via ventil i himling.

B O D
Det er en innvendig bod i første plan i tilknytning til leiligheten i andre plan. Det er også dør mellom denne boden og vaskerom i den andre leiligheten. Det er flere boder i kjeller med garderobe og gode oppbevaringsmuligheter. Bod/redskapsbod med utgang til uteområdet

I N N V E N D I G E O V E R F L A T E R
Gulvene har laminat, belegg, teppegulv, betong og parkett.
Veggene har malt strie, plater, tapet, panel, trepanel,
Himlingene har malt gips, himlingsplater, trepanel.

Gulvvarme: Kjellerstue, samt i 1. etasje (entré, gang, stue). Varmekablene på bad i 1. etasje er defekt.

G A R A S J E
Frittstående garasje med garasjeport.

T I L S T A N D S G R A D E R
Tilstandsgradene tilsier hvilken tilstand et objekt har i forhold til definert referansenivå. Nedenfor angis en kort oppsummering der den bygningssakkyndig har beskrevet avvik ved boligen som har fått tilstandsgrad 2 (TG2) eller tilstandsgrad 3 (TG3). Opplistingen nedenfor er ikke uttømmende og du oppfordres til å lese og sette deg grundig inn i salgsmateriellet. For nærmere forklaring av tilstandsgrader og hva de angir, se vedlagte tilstandsrapport.

Fordeling av tilstandsgrader:
TG0: Ingen avvik
TG1: Mindre eller moderate avvik
TG2: Avvik som ikke krever tiltak
TG2: Avvik som kan kreve tiltak
TG3: Store eller alvorlige avvik
TG IU: Konstruksjoner som ikke er undersøkt

TG3 - Utvendig

- Taktekking
Mer enn halvparten av forventet brukstid er passert på undertak. Taktekkingen har mose og slitasje på grunn av elde. Råteskade i vindski/raft på sør-vestsiden av taket, samt i overgang av tak mot nord. Overgang mellom tak på sør-østsiden har ufagmessig utførelse.
Ufagmessig utførelse på tetting rundt pipen. Bul i møneplate bak pipen.
Det må gjøres nærmere undersøkelser av taket. Vedlikehold og lokale utbedringer må påregnes. Tidspunkt for utskifting av undertak nærmer seg.
Kostnadsestimat: 100 000 - 300 000

- Takkonstruksjon/Loft - 2
Det er påvist skadelige fuktverdier i takkonstruksjonen rundt pipeløpet, samt i overgang av tilbygget mot nord. Skadet materiale må skiftes ut for å hindre videre skadeutikling.
Kostnadsestimat: 10 000 - 50 000

- Utvendige trapper - 2
Det er ikke montert rekkverk. Trappen er bratt og tilfredsstiller ikke dagens krav til utforming av trapper. Rekkverk må monteres for å lukke avviket.
Kostnadsestimat: Under 10 000

TG3 - Innvendig:

- Rom Under Terreng
Konstruksjonene må sikres mot råte, sopp og skadedyr. Dersom kjelleren skal benyttes som innredet rom, må dreneringen skiftes og grunnmuren fuktsikres. Det må også utføres tiltak mot kapilæroppsug i den støpte sålen. Kjelleretasjen må bygges opp på nytt iht. godkjente og fuktsikre løsninger for rom under terreng.
Kostnadsestimat: Over 300 000

- Våtrom > Kjelleretasje > Bad/wc > Generell
Våtrommet må oppgraderes for å tåle normal bruk etter dagens standard
Kostnadsestimat: 100 000 - 300 000

- Våtrom > 2. etasje > Bad/vaskerom > Generell
Våtrommet må oppgraderes for å tåle normal bruk etter dagens krav.
Kostnadsestimat: Over 300 000

- Våtrom > 1. etasje > Bad/wc > Overflater vegger og himling
Det er påvist tegn til fuktskader i overflater. Våtromsplater er ikke montert fagmessig. Svertesopp er registrert. Badet/våtsonen står foran en full oppgradering.
Kostnadsestimat: 100 000 - 300 000

TG3 - Tekniske installasjoner

- Elektrisk anlegg
Kostnadsestimat: 10 000 - 50 000

- Branntekniske forhold
Boligen har ikke røykvarslere og brannslukningsutstyr iht. forskriftskrav.
Kostnadsestimat: Under 10 000

TG3 - Tomteforhold

- Fuktsikring og drenering
Det mangler, eller på grunn av alder er det sannsynlig at det mangler, utvendig fuktsikring av grunnmuren ved kjeller/underetasje. Mer enn halvparten av forventet levetid på drenering er overskredet.
Kostnadsestimat: Over 300 000

TGIU - Våtrom

- Våtrom > 1. etasje > Vaskerom > Tilliggende konstruksjoner våtrom
Det er pga bygningsmessige hindringer ikke fysisk mulig å foreta hulltaking i vegg bak våtsone.


TG2 - Utvendig

- Nedløp og beslag
Lokal utbedring må utføres. Det bør lages system for bortledning av vann fra taknedløp og grunnmur. Stigetrinn til feier må monteres. Ingen snøfangerep å taket. Det bør monteres bue på pipen.

- Veggkonstruksjon
Det må påregnes vedlikehold og lokale utbedringer. Musesperre må etableres. Råteskadet kledning må skiftes ut. Gjennomføring i fasaden må tettes tilstrekkelig. Relatert til fuktskader som tidligere er avdekket, kan det ikke utelukkes skjulte skader på øvrige deler av yttervegger.

-Takkonstruksjon/Loft
Det ble observert muselort ved befaring. Stedvise fuktskjolder i undertak og isolasjon på kaldloftet, som tyder på tidligere utettheter/lekkasjer i takflaten. Skadet materiale bør skiftes ut. Fuktig isolasjon kan føre til sopp- og muggvekst, samt dårligere isoleringsevne. Det bør gjennomføres ytterligere undersøkelser for å få kartlagt skadeomfanget

- Vinduer
Det er påvist avvik rundt innsettingsdetaljer. Det er påvist tegn på innvendig kondensering av enkelte vindusglass. Det må påregnes vedlikehold og lokale utbedringer. Flere vinduer må påregnes skiftes ut.

- Dører
Det er montert katteluke i dørbladet på vaskerommet. Det bør påregnes at enkelte dører må få utført vedlikehold og justeres. Eldre terrassedører er modne for utskifting.

- Balkonger, terrasser og rom under balkonger
Det er observert stående vann på tekkingen over innredet boligrom.
Terrassedekke og rekkverk er stedvis værslitt.Det er påvist råteskader i deler av rekkverk mot sørsiden av 1. etasjen. Det bør påregnes vedlikehold og lokale utbedringer. Rekkverk må festes tilstrekkelig. Råteskadet treverk må skiftes ut.

- Utvendige trapper
Det er registrert en del slitasje i trapp/repos foran inngangsparti. Det er mye vegetasjon rundt trappen på vestsiden av hagen. Vedlikehold må påregnes. Vegetasjon fører til økt fuktbelastning på trekonstruksjoner.

- Andre utvendige forhold
Søyle er kledd inn og ligger skjult, og det har derfor ikke vært mulig å foreta visuell kontroll av tilstanden. Kledningen står i direkte kontakt med bakken, noe som er en uheldig konstruksjonsløsning. Det anbefales å kontrollere konstruksjonen nærmere, fortrinnsvis ved åpning av kledning og evt etablere tilstrekkelig klaring mellom trekonstruksjon og terreng.


TG2 - Innvendig:

- Overflater
Det er registrert svertesopp på overflater. Stedvise fuktskjolder og høy slitasje på enkelte overflater. Antydning til muggsopp i enkelte rom. Overflater må utbedres eller skiftes. Mugg på overflater bør fjernes.

- Etasjeskille/gulv mot grunn
Det er målt høydeforskjell (avvik) i stue i 1. etasje, kjelleretasje og 2. etasje. Tilstandsgrad 2 gis med bakgrunn i standardens krav til godkjente måleavvik.

- Radon
Det er ikke foretatt radonmålinger, og bygget er heller ikke utført med radonsperre. Det bør utføres radonmålinger ved evt. utleie

- Pipe og ildsted
Avstanden mellom ildstedet og brennbart materiale er for liten.
Låsemekanisme på sotluken fungerer ikke optimalt.

- Innvendige trapper
Det mangler håndløper på vegg i trappeløpet.
Trappen tilfredsstiller ikke dagens krav til utforming av trapper (det er bl.a liten fri høyde og bredde i trappeløpet).

- Innvendige dører
Det er påvist avvik som tilsier at det bør foretas tiltak på enkelte dører.
Stedvise bruksmerker/slitasje. Døren til badet har hull i dørbladet. Døren mellom badet og vaskerommet har fuktsvell og betydelig slitasje i karm/listverk. Flere dører har løse håndtak og kniper i karm ved åpning/lukking. Det må påregnes vedlikehold og at enkelte dører må skiftes ut.

- Andre innvendige forhold
Eier opplyser om tilfeller av mus inne i boligen. Det er utplassert musefeller i flere rom. Det ble observert muselort på badet i kjeller ved befaring. Anbefaler å kontakte skadedyrsfirma for nærmere kartlegging og kontroll.

- Andre innvendige forhold - 2
Det er registrert fuktskjoler i himling flere steder. Eier opplyser i egenerklæring om at dette kommer fra tidligere lekkasje fra taket. Det er lagt ny tekking på taket for noen år siden og siden da har det ikke vært registrert nye lekkasjer. Det er ikke observert aktiv fukt ved befaring. Anbefaler nærmere undersøkelser for å avdekke mulige fuktskader som ligger skjult bak overflatene.

- Våtrom > kjelleretasje > Bad/wc > Tilliggende konstruksjoner våtrom
Hulltaking er ikke foretatt da det allerede er påvist andre avvik i våtsonen.

- Kjøkken > 2. etasje > Overflater og innredning
Det er påvist skader på overflater/kjøkkeninnredning utover normal slitasjegrad. Det er påvist skader/fuktskjolder i kjøkkengulvet. Stedvise bruksmerker på skuffe- og skapfronter. Det er påvist fuktsvell i bunnskapet under vasken, samt deler av benkeplaten ved vask/oppvaskmaskin.

- Kjøkken > 2. etasje > Avtrekk
Det er avvik: Avtrekket har lav/ingen funksjon.

Våtrom > 2. etasje > Bad/vaskerom > Tilliggende konstruksjoner våtrom
Det er avvik: Våtrommet har flere utettheter. Våtrommet må totalrenoveres.

- 1. etasje > Kjøkken > Overflater og innredning
Det er påvist skader på overflater/kjøkkeninnredning
utover normal slitasjegrad

- Våtrom > 1. etasje > Bad/wc > Overflater Gulv
Det er påvist avvik i fallforhold til sluk i forhold til krav i forskrift på byggetidspunktet. Det må foretas utbedring av fallforhold. Eier opplyser at det har oppstått lekkasje mot underliggende rom.

- Våtrom > 1. etasje > Bad/wc > Sluk, membran og tettesjikt
Det er fare for fukt i konstruksjoner. Membranen må skiftes.

- Våtrom > 1. etasje > Bad/wc > Sanitærutstyr og innredning
Det er påvist riss/sprekker i utstyr på våtrommet. Skapdør subber i listverk på vindu ved åpning/lukking. Deler av skapdører har fuktsvell. Silikonfuger rundt vasken har ujevnheter og fargeavvik. Påviste skdader må utbedres.

- Våtrom > 1. etasje > Bad/wc > Ventilasjon
Våtrommet mangler tilluftsventilering, f.eks. spalte/ventil

- Våtrom > 1. etasje > Bad/wc > Tilliggende konstruksjoner våtrom
Hulltaking er ikke foretatt da det allerede er påvist andre avvik i våtsonen.
Det er pga bygningsmessige hindringer ikke fysisk mulig å foreta hulltaking i vegg bak våtsone. Våtrommet må rehabiliteres.

- Våtrom > 1. etasje > Vaskerom > Overflater vegger og himling
Det er påvist tegn til fuktskader i overflater. Våtromsplater er ikke montert fagmessig.Overflater må utbedres eller skiftes. Våtromsplater er ikke montert fagmessig

- Våtrom > 1. etasje > Vaskerom > Overflater Gulv
Det er påvist avvik i fallforhold til sluk i forhold til krav i forskrift på byggetidspunktet

- Våtrom > 1. etasje > Vaskerom > Sluk, membran og tettesjikt
Det er påvist mangelfull/feil utførelse rundt rørgjennomføringer e.l. som gir fare for fukt i konstruksjonen i våtsone.
Feil utførelse av rørgjennomføringen i gulvet.
Sluket var ved befaring skittent, uten mulighet for å avgi en sikker vurdering av tilstand/utførelse.

- Våtrom > 1. etasje > Vaskerom > Ventilasjon Gå til side
Rommet har kun naturlig ventilasjon. Våtrommet mangler tilluftsventilering


TG2 - Tekniske installasjoner

- Vannledninger
Mer enn halvparten av forventet brukstid er passert på innvendige vannledninger.
Det er ikke montert egen innvendig stoppekran til leiligheten i 2. etasjen.

- Avløpsrør
Det er ikke påvist tilfredsstillende lufting av avløpsanlegget.
Det er ikke påvist tilfredsstillende stakemulighet på avløpsanlegg.
Mer enn halvparten av forventet brukstid er passert på innvendige avløpsledninger.

- Ventilasjon
Det er påvist mangelfull ventilasjon på ett eller flere rom i boligen.
Netting på enkelte ventilar har rustet bort.
Avtrekksviften har oppnådd sin teoretiske levetid. Det er påvist dårlig funksjon i avtrekket.

- Varmtvannstank
Det er ikke påvist tilfredsstillende el-tilkobling av varmtvannstank iht. gjeldende forskrift.


TG2 - Tomteforhold

- Grunnmur og fundamenter
Det er registrert skråriss som er symptom på setninger.

- Forstøtningsmurer
Det er påvist mindre sprekker og/eller skjevheter i muren.
Muren i hagen er delvis tilgrodd med mose og fremstår fuktig.

- Terrengforhold
Det er påvist dårlig fall eller flatt terreng inn mot grunnmur og dermed muligheter for større vannansamlinger.
Eiendommen ligger innenfor aktsomhetsområde for kvikkleireskred iht. NVE Atlas.

- Utvendige vann- og avløpsledninger
Mer enn halvparten av forventet brukstid er passert på utvendige avløpsledninger.
Mer enn halvparten av forventet brukstid er passert på utvendige vannledninger.
Møblering/utstyr Kun integrerte hvitevarer medfølger i handelen. For all innredning i garderobeskap vil dette medfølge handelen, både løs og fast. Se vedlagt løsøre og tilbehørsliste utarbeidet av Norges Eiendomsmeglerforbund. Ta kontakt med eiendomsmegler for nærmere informasjon.
Oppvarming Boligen blir varmet opp med elektrisitet. Vedfyring i stue.

Dersom det er rom i boligen som ikke har vegg-/fastmonterte ovner, så følger det heller ikke med ovner i disse rommene. Dette avviker fra bransjenormen.
Parkering Parkering på egen tomt, i carport og eldre garasje. Deler av garasjen er plassert utenfor eiendomsgrensen. Øvrig parkering etter gjeldende bestemmelser i området.
Tomten Areal: 493 kvm, Eierform: Eiet tomt
Vei, vann og avløp Offentlig vei, vann og avløp via private stikkledninger.
Regulering Eiendommen er regulert til boligformål. For området gjelder reguleringsplan for
J. Olsens gt.-Kveldrov.-Mellomvn-Bjerkakervn-Tr. sundet
plan-ID 0509 ikraftsatt 27.10.1976. Eiendomsmegler har innhentet reguleringsopplysninger, som kan fås ved henvendelse til megler.

Det er registrert pågående planarbeid på eller i nærheten av eiendommen

Eiendommen ligger innenfor fortettingsområdet

Eiendommen ligger ikke innenfor henssynssoner i bebyggelsesplan

Deler av garasje er plassert utenfor tomtegrense. Naboeiendommen i Balsfjordgata 41 A (gnr. 200 bnr. 88) er ubebygd og kan bli bebygd i fremtiden. På eiendommen i Målselvgata 18, er det godkjent oppføring av garasje ca. 0,8 m fra tomtegrense.
Sentrale lover Handelen reguleres av avhendingsloven.
Prisantydning 6 990 000,-
Boligkjøperforsikring Boligkjøperforsikring: Vedlagt i salgsoppgaven følger informasjon om BoligkjøperforsikringPluss og Boligkjøperforsikring fra HELP Forsikring AS.

Boligkjøperforsikring er en rettshjelpsforsikring som gir trygghet og profesjonell juridisk hjelp dersom det oppdages uventede feil eller mangler ved boligen de neste fem årene.

Boligkjøperforsikring Pluss har samme dekning som boligkjøperforsikring + fullverdig advokathjelp på viktige rettsområder i privatlivet.

Les mer om begge forsikringene i vedlagte materiell eller på help.no. Det gjøres oppmerksom på at meglerforetaket mottar kr 3 400 / 3 800 / 4 300,-
(avhengig av boligtype) i kostnadsgodtgjørelse for hver forsikringsavtale som formidles på Boligkjøperforsikring Pluss og kr 2 400,- / 2 800,- / 3 300,- i kostnadsgodtgjørelse for Boligkjøperforsikring.
Overtagelse Overtakelse etter nærmere avtale med selger. Avklares i forbindelse med budgivning.
Oppgjør Oppgjør mellom partene foretas av:

Stender oppgjør AS
Postboks 2454, Drotningsvik
5834 Bergen.
Tlf: 55 50 85 90

Meglers provisjon/vederlag og utlegg betales av selger. Beløpet forfaller til betaling ved avtaleinngåelsen.
Takst / tilstandsrapport Takst utført av Jarand Gamst den 13.10.25
Takster og verdier Teknisk verdi 7 000 000,-
Verdi takst 7 000 000,-
Formuesverdi Formuesverdi primærbolig: 2 380 464,-
Formuesverdi sekundærbolig: 9 521 854,-
Formuesverdi gjelder for inntektsåret 2024. Formuesverdien er estimert på skatteetaten sine hjemmesider. Ta kontakt med Skatteetaten ved spørsmål om formuesverdi eller ved andre spørsmål om skatt.
Kommunale avgifter Kommunale avgifter: Kr. 48 703,- pr. År.

I de kommunale avgiftene inngår avgift for vann, avløp, renovasjon, feiing og eiendomsskatt. Oppgitte avgifter kan være avhengig av bruk. Opplysninger er innhentet fra Gnr. 200 bnr. 867 i Tromsø kommune.
Energiforbruk Oppvarmingskarakter Rød - Energikarakter G
Adgang til utleie Hel tomannsbolig med to leiligheter.

Begge leilighetene har bad/wc, kjøkken og godkjente oppholdsrom (soverom, stue). Det er også skyvedør mellom enhetene, som gjør det enkelt å bruke hele boligen selv dersom man har behov for mer plass.
Tinglyste rettigheter og servitutter Følgende er tinglyst på eiendommen:

Heftelser:

2004/15790-4/97 Bestemmelse iflg. skjøte
05.10.2004
Rett for kommunen til å anlegge og vedlikeholde ledninger m.m.

Grunndata:
1936/902078-2/97 Registrering av grunn
06.10.1936
Denne matrikkelenhet opprettet fra:Knr:5501 Gnr:200 Bnr:866

Rettigheter på andre eiendommer:
Ingen rettigheter funnet

For mer informasjon om erklæringer ta kontakt med meglerforetakets representant.
Legalpant Kommunen har legalpant i eiendommen. Dette gjelder alle bebygde eiendommer i alle kommuner i Norge. På eiendommen kan det være tinglyst erklæringer/avtaler som for eksempel rett til kommunen til å anlegge vann og kloakkledninger inkl. reparasjon av disse. Bestemmelser om bebyggelsen, gjerder, adkomstrettigheter. Disse erklæringene/avtalene vil følge eiendommen ved salg og kan ikke slettes.
Budgivning Alle bud skal inngis skriftlig til megler.

Benytt "Gi bud"-knappen på våre annonser for å registrere ditt bud elektronisk. Dette er en enkel og sikker løsning som lar deg signere budet elektronisk ved hjelp av BankID.

Fremgangsmåte ved budgivning:
Benytt "Gi bud"-knappen for å logge inn med BankID. Din elektroniske identitet og signatur blir kontrollert som en del av innloggingen.
Registrer ditt bud med korrekt beløp, frist, eventuelle forbehold, ønsket overtagelse og finansieringsplan.
Bekreft at innholdet i ditt bud er korrekt ved å signere budet elektronisk.
Du mottar en SMS-kvittering (skriftlig mottaksbekreftelse) når ditt bud er registrert.
Registrer budforhøyelser ved å logge inn på nytt med BankID.
Du kan også sende svar til SMS-kvitteringen for å registrere budforhøyelser. Vær oppmerksom på at bud gitt via SMS må behandles manuelt av megler. Bud via SMS kan ikke anses som mottatt av megler før du har fått en svarbekreftelse pr SMS.

Bud som ikke er skriftlig, eller som har kortere akseptfrist enn til kl 12.00 dagen etter siste annonserte visning, vil ikke bli formidlet til selger. Et bud er bindende for budgiver når budet er kommet til selgers kunnskap. Selger står fritt til å akseptere eller forkaste ethvert bud, og er således ikke forpliktet til å akseptere det høyeste budet på eiendommen.

Megler skal, i den grad det er nødvending og mulig, informere de involverte i budrunden skriftlig om status i budgivningen.

Megler er forpliktet til å legge til rette for en forsvarlig avvikling av budrunden, og for at budene skal kunne bli behandlet og videreformidlet skriftlig til alle involverte parter, må ethvert bud ha en tilstrekkelig lang akseptfrist. Selger må skriftlig akseptere budet før budaksept kan formidles til budgiver. Budforhøyelser skal derfor ha akseptfrist på minimum 30 minutter fra budet inngis.
Selger og kjøper har krav på å få utlevert kopi av budjournalen straks etter at handel er kommet i stand. Alle som har inngitt bud på eiendommen kan på forespørsel få en kopi av anonymisert budjournal etter at budrunden er avsluttet.

For øvrig vises til det Forbrukerinformasjon om budgivning , som er vedlagt salgsoppgaven.
Lovanvendelse Eiendommen selges etter reglene i avhendingsloven.

Eiendommen skal overleveres kjøper i tråd med det som er avtalt. Det er viktig at kjøper setter seg grundig inn i alle salgsdokumentene, herunder salgsoppgave, tilstandsrapport og selgers egenerklæring. Kjøper anses kjent med forhold som er tydelig beskrevet i salgsdokumentene. Forhold som er beskrevet i salgsdokumentene kan ikke påberopes som mangler. Dette gjelder uavhengig av om kjøper har lest dokumentene. Alle interessenter oppfordres til å undersøke eiendommen nøye, gjerne sammen med fagkyndig før bud inngis. Kjøper som velger å kjøpe usett kan ikke gjøre gjeldende som mangel noe han burde blitt kjent med ved undersøkelsen.

Dersom det er behov for avklaringer, anbefaler vi at kjøper rådfører seg med eiendomsmegler eller en bygningssakyndig før det legges inn bud.

Hvis eiendommen ikke er i samsvar med det kjøperen må kunne forvente ut ifra alder, type og synlig tilstand, kan det være en mangel. Det samme gjelder hvis det er holdt tilbake eller gitt uriktige opplysninger om eiendommen og dette har virket inn på avtalen. En bolig som har blitt brukt i en viss tid, har vanligvis blitt utsatt for slitasje og skader kan ha oppstått. Slik bruksslitasje må kjøper regne med, og det kan avdekkes enkelte forhold etter overtakelse som nødvendiggjør utbedringer. Normal slitasje og skader som nødvendiggjør utbedring, er innenfor hva kjøper må forvente og vil ikke utgjøre en mangel.

Boligen kan ha en mangel dersom det er avvik mellom opplyst og faktisk areal, forutsatt at avviket er på 2% eller mer og minimum 1 kvm.

Ved beregning av et eventuelt prisavslag eller erstatning må kjøper selv dekke tap/kostnader opptil et beløp på kr 10 000 (egenandel).

Dersom kjøper ikke er forbruker selges eiendommen som den er , og selgers ansvar er da begrenset jf. avhl. § 3-9, 2. pktm. Informasjon om kjøpers undersøkelsesplikt, herunder oppfordringen om å undersøke eiendommen nøye, gjelder også for kjøpere som ikke anses som forbrukere.
Hvitvasking Alle eiendomsmeglerforetak er fra 01.01.2018 underlagt lov om hvitvasking. Dette innebærer at de har plikt til å melde fra Økokrim om evt. mistenkelige transaksjoner.
Vedlegg Til denne salgsoppgave kan det følge viktige vedlegg, som er en del av salgsdokumentene. Hvis salgsoppgaven er skrevet ut fra internett må kjøper også selv skrive ut vedlegg eller ta kontakt med meglerforetaket for å få disse.

Vedlegg til salgsoppgaven er:

Grunnboksutskrift
Tilstandsrapport
Selgers egenerklæringsskjema
Reguleringsbestemmelser
Reguleringskart og andre kartgrunnlag
Matrikkelrapport
Eiendomsrapport
Midlertidig brukstillatelse ombygging datert 15.06.1982.
Bygningstegninger 01.01.1936
Godjente bygningstegninger ombygg datert 29.05.1981
Godkjente bygningstegninger tilbygg 24.01.1957
Energiattest H0101
Informasjonsskriv om budgivning


Det gjøres oppmerksom på at salgsoppgaven ikke er komplett uten alle vedlegg. Ta kontakt med meglerforetakets representant dersom du mener at noen av vedleggene mangler.
Mangler For nærmere opplysninger om mangler se vedlagt tilstandsrapport og selgers egenerklæring som følger vedlagt salgsoppgaven. Vi oppfordrer alle til å ta med bygningskyndig fagmann for nærmere gjennomgang av eiendommen
Diverse BOLIGSELGERFORSIKRING
Boligen selges med boligselgerforsikring
En boligselgerforsikring gir trygghet for selger og kjøper, og kan dekke feil og mangler som enten ikke er opplyst om eller det ikke var kjennskap til da salget ble gjennomført. Forsikringen er tegnet i Gjensidige Forsikring ASA

EGENERKLÆRINGSSKJEMA
Selger har fylt ut egenerklæringsskjema, og denne er vedlagt i salgsoppgaven. Nedenfor gjengis kort sammendrag:

- Har det vært feil på bad, vaskerom eller toalettrom?
Lekkasje i gulv, vann drypper ned til etasjen under. Gjelder begge bad og skjedde for noen år siden.

- Er det utført arbeid på bad, vaskerom eller toalettrom?
2010, Bad i 1. etasje.Varmekabler i gulv. nytt gulvbelegg, nytt toalett, ny dusj, ny servant og skap. Baderomsplater ble lagt på veggene, nytt tak med downlights ble bygget og ny kran for dusj ved toalett ble montert. Utført av Engen entreprenør elektriker. Bademiljø Rørleggeren, Garula snekker.

- Har det lekket vann utenfra og inn, eller er det sett andre tegn til fukt?
2024, Lekkasje fra tak i skjøter der takets skrå møter hverandre, dette har skjedd flere ganger opp gjennom årene. Det ble lagt ny takpapp for noen år siden og siden da har det ikke vært lekkasje.
Ved montering av nytt vindu på soverom i 1. etasje le det oppdaget at det har vært lekkasje inn i veggen på husets vestside, trolig der horisontal og vertikal panel møtes.
Vannlekkasje mellom kjøkken og walk in garderobe.

- I din leilighet, er det utført arbeid på tak, yttervegg, vindu eller annen fasade?
2024,Nytt stort stuevindu ble satt inn. Utført av Garula snekker.

- Har det vært feil på det elektriske anlegget?
Ved kontroll fra Troms Kraft ble det avdekket at Elektriker Engen hadde gjort feil med stikkontakter på kjøkken. Dette har blitt utbedret av Karlsen elektro.
2019 ble oppretting av tidligere nevnte feil gjort. Utført av Karlsen Elektro.
Vi har kun 1 fase(?) i leiligheten i 1. etasje og kjeller. Sikringen går ofte da det skal lite til før belastningen blir for stor. Lysbrytere og stikkontakter er løsnet noen steder og en, på sørvegg, kan ikke brukes muligens på grunn av kortslutning med varmeovn.

- Har det vært feil på utvendige eller innvendige avløpsrør eller vannrør?
Etter å ha mottatt første kommunalavgift for 2026 ser vi at vi har et veldig stort vannforbruk som kan skyldes lekkasje. Jeg har vært i kontakt med
kommunen ang. dette og venter tilbakemelding fra Comfort rørlegger for når de kan søke etter feil.

- Er det utført arbeid på utvendige eller innvendige avløpsrør eller vannrør?
2024, Montert vannmåler fra Tromsø kommune. Comfort rørlegger.

- Er det utført arbeid på varmeanlegg eller ventilasjonsanlegg?
2013, Montert rør i pipe. Årstall og firma vet jeg ikke.

- Er det tegn på setningsskader eller sprekker i for eksempel grunnmur eller fliser?
Usikker på hvor dyp sprekken er, men i vegg på nordsiden av carport er det en ang sprekk.
Stuegulv heller i begge etasjer der gammelt hus møter nybygg fra 1980.

- Har det vært feil eller gjort endringer på ildsted eller pipe?
Besvart tidligere under varme, men forrige eier monterte rør i pipa og begge ildsteder ble erstattet. Jeg vet ikke hvilket år dette ble gjort.

- Har det vært skadedyr i leiligheten?
Mus har vært sett i huset en rekke ganger opp gjennom årene. På grunn av husets alder har jeg ikke lykkes med å tette alle sprekker, men katten vår gjør en god jobb med å drepe musene nå.

- Har det vært mugg, sopp eller råte i boligen eller andre bygninger på eiendommen?
Nevnt tidligere: I vegg på husets vestside ble det oppdaget mugg i glava etter vannlekkasje der horisintal og vertikal panel møter hverandre. Ble oppdaget ved montering av vindu.

- Har du bygd på eller gjort om kjeller, loft eller annet til boligrom?
2016, Halve kjelleren ble gjort om fra boder til kjellerstue og badstue ble gjort om til walk in garderobe. Garula snekker.

- Er det andre forhold av betydning eller sjenanse for eiendommen eller nærområdet?
Vi har mottatt byggevarsel som vi har godkjent fra nabo på husets nordside. De skal bygge nært vår eiendom.

- Har du andre opplysninger om boligen eller eiendommen utover det du har svart?
Jeg har ført opp alt jeg kommer på, huset er gammelt og ting har skjedd før vi kjøpte det så det kan dukke opp annet som jeg ikke kjenner til.

Megler:

Inger Alette Eira

+47 41 51 42 35

Ta kontakt med megler direkte for å avtale egen visning

Inger Alette Eira

+47 41 51 42 35

Last ned:

Last ned prospekt

Visning:

Tirsdag, 07. apr.
18:30 - 19:00
For visning, klikk på "Visningspåmelding" under. Kontakt megler for mer informasjon!
Husk å lese komplett salgsoppgave før visning.
Bestill komplett, utskriftsvennlig salgsoppgave

Visningspåmelding

Bli kontaktet:

Jeg ønsker å bli kontaktet på:
Velkommen til Målselvgata 20 - En hel tomannsbolig med to leiligheter presentert av Inger Alette Eira i Sne Eiendomsmegling!
Velkommen til Målselvgata 20 - En hel tomannsbolig med to leiligheter presentert av Inger Alette Eira i Sne Eiendomsmegling!
Det er nydelig utsikt fra boligen mot Fjellheisen, Tromsøysundet og fastlandet.
Det er nydelig utsikt fra boligen mot Fjellheisen, Tromsøysundet og fastlandet.
Boligen strekker seg over tre plan og har fin beliggenhet i rolig gate - med umiddelbar nærhet til Tromsø sentrum.
Boligen strekker seg over tre plan og har fin beliggenhet i rolig gate - med umiddelbar nærhet til Tromsø sentrum.
Utsikt! Selgers private foto.
Utsikt! Selgers private foto.
Utsikt! Selgers private foto.
Utsikt! Selgers private foto.
Planskisse andre plan
Planskisse andre plan
Boligen har 2 separate leiligheter. Leilighet i øvre plan med romslig stue med vinduer i to himmelretninger som gir gode lysforhold
Boligen har 2 separate leiligheter. Leilighet i øvre plan med romslig stue med vinduer i to himmelretninger som gir gode lysforhold
Stuen er av god størrelse og fremstår som lys og innbydende
Stuen er av god størrelse og fremstår som lys og innbydende
Stuen er romslig og har god plass til stor spisegruppe for hele familien.
Stuen er romslig og har god plass til stor spisegruppe for hele familien.
Fra stue er det utgang til en stor, takoverbygd balkong på ca. 20 kvm med nydelig utsikt!
Fra stue er det utgang til en stor, takoverbygd balkong på ca. 20 kvm med nydelig utsikt!
Stuen har vedfyring, som gir behagelig varme året rundt!
Stuen har vedfyring, som gir behagelig varme året rundt!
Praktisk kjøkken fra ca. 2008 med lyse fronter og rikelig med skap- og benkeplass
Praktisk kjøkken fra ca. 2008 med lyse fronter og rikelig med skap- og benkeplass
Kjøkkenet i øvre plan har en god utforming og her er det også plass til spisebord.
Kjøkkenet i øvre plan har en god utforming og her er det også plass til spisebord.
Kjøkkenet er i åpen løsning mot stue
Kjøkkenet er i åpen løsning mot stue
Her bor du sentralt med kort vei til barnehager, skoler, butikker, busstopp og gangavstand til Tromsø sentrum.
Her bor du sentralt med kort vei til barnehager, skoler, butikker, busstopp og gangavstand til Tromsø sentrum.
Fra stuen i øvre plan er det utgang til balkong med fin utsikt mot øst!
Fra stuen i øvre plan er det utgang til balkong med fin utsikt mot øst!
Leilighet i øvre plan har 3 soverom av god størrelse
Leilighet i øvre plan har 3 soverom av god størrelse
Soverom 2
Soverom 2
Soverom 3 har utgang til balkong.
Soverom 3 har utgang til balkong.
Bad/wc/vaskerom i andre plan med vegghengt wc og stor baderomsinnredning for lagring av baderomsartikler.
Bad/wc/vaskerom i andre plan med vegghengt wc og stor baderomsinnredning for lagring av baderomsartikler.
Videre har badet steamdusj og opplegg for vaskemaskin.
Videre har badet steamdusj og opplegg for vaskemaskin.
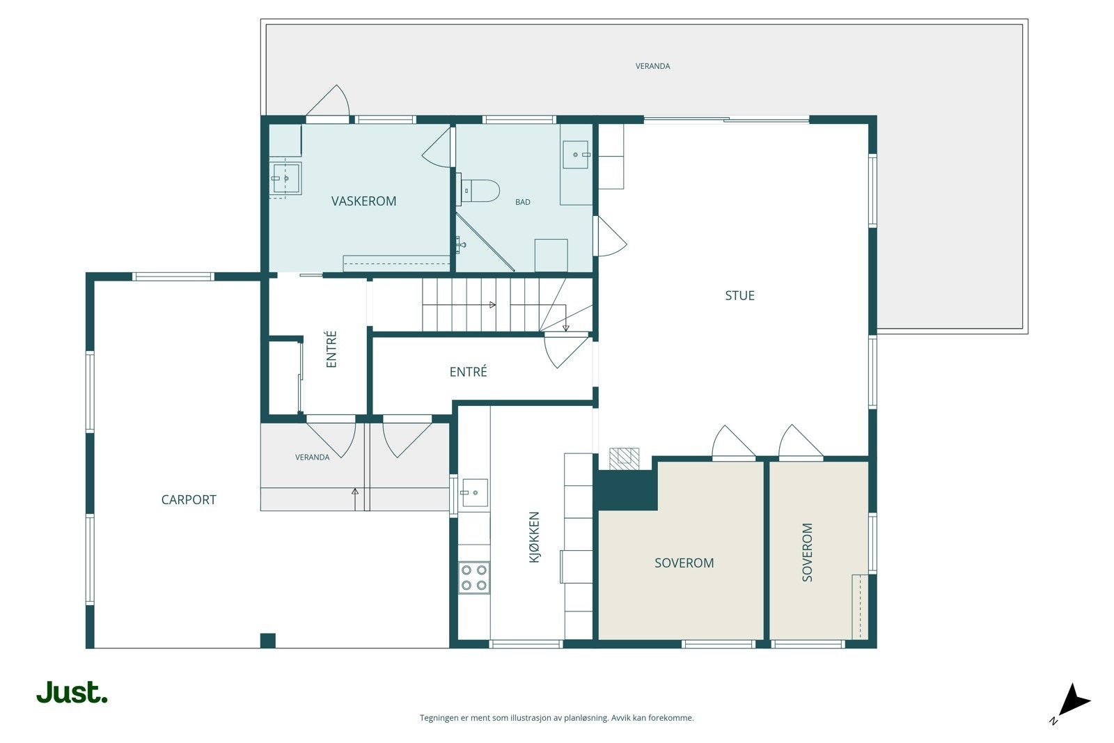
Planskisse første plan
Planskisse første plan
Romslig stue i første plan med malte veggoverflater og gulvvarme.
Romslig stue i første plan med malte veggoverflater og gulvvarme.
Stuen fremstår som lys og trivelig, og har også vedfyring
Stuen fremstår som lys og trivelig, og har også vedfyring
Stuen har vinduer i to himmelretninger og store vindusflater som gir rikelig lysinnslipp.
Stuen har vinduer i to himmelretninger og store vindusflater som gir rikelig lysinnslipp.
Stuen er romslig og gir flere møbleringsmuligheter
Stuen er romslig og gir flere møbleringsmuligheter
Utsikt! Selgers private foto.
Utsikt! Selgers private foto.
Fra stuen er det utgang til balkong med utsikt mot Tromsdalen.
Fra stuen er det utgang til balkong med utsikt mot Tromsdalen.
Utsikt! Selgers private foto.
Utsikt! Selgers private foto.
Utsikt! Selgers private foto.
Utsikt! Selgers private foto.
Fra stue i første plan er det utgang til en stor terrasse som strekker seg langs to sider av boligen.
Fra stue i første plan er det utgang til en stor terrasse som strekker seg langs to sider av boligen.
Kjøkken i første plan er nytt fra ca. 2010 og har en funksjonell utforming
Kjøkken i første plan er nytt fra ca. 2010 og har en funksjonell utforming
Kjøkkenet er praktisk og har rikelig med skap- og benkeplass.
Kjøkkenet er praktisk og har rikelig med skap- og benkeplass.
Det er soverom i første plan med garderobeskap.
Det er soverom i første plan med garderobeskap.
Soverom 2. Det var opprinnelig et stort soverom, som er delt i to med lettvegg (ikke omsøkt).
Soverom 2. Det var opprinnelig et stort soverom, som er delt i to med lettvegg (ikke omsøkt).
Badet i hovedetasjen er av god størrelse. Badet må påregnes oppgradert.
Badet i hovedetasjen er av god størrelse. Badet må påregnes oppgradert.
Baderomsinnredning med servant, speil og ellers god oppbevaringsplass i skuffer
Baderomsinnredning med servant, speil og ellers god oppbevaringsplass i skuffer
Vaskerom i første plan med god oppbevaringsplass, opplegg for vaskemaskin og utgang til balkong
Vaskerom i første plan med god oppbevaringsplass, opplegg for vaskemaskin og utgang til balkong
Romslig gang i første plan med plass til kommode eller skoskap. Det er adkomst til trapperom med trapp ned til kjelleren
Romslig gang i første plan med plass til kommode eller skoskap. Det er adkomst til trapperom med trapp ned til kjelleren
Planskisse kjeller.
Planskisse kjeller.
Kjelleretasjen har flere boder og rom som er innredet. Kjellerstue er ikke godkjent til varig opphold men kan kan benyttes som hobbyrom
Kjelleretasjen har flere boder og rom som er innredet. Kjellerstue er ikke godkjent til varig opphold men kan kan benyttes som hobbyrom
Kjellerstuen har gulvvarme og god plass til sofa og tv-møbler
Kjellerstuen har gulvvarme og god plass til sofa og tv-møbler
Rom i kjeller benyttes som soverom av selger, men  er ikke godkjent som rom for varig opphold.
Rom i kjeller benyttes som soverom av selger, men er ikke godkjent som rom for varig opphold.
Enda et bad i kjelleretasjen kommer godt med! Badet i kjeller har malt gulv, vegghengt wc og baderomsinnredning, samt dusjkabinett
Enda et bad i kjelleretasjen kommer godt med! Badet i kjeller har malt gulv, vegghengt wc og baderomsinnredning, samt dusjkabinett
Det er parkering i garasje og carport.
Det er parkering i garasje og carport.
Det er kort vei til sentrum med diverse forretninger, bademuligheter og fasiliteter!
Det er kort vei til sentrum med diverse forretninger, bademuligheter og fasiliteter!
Målselvgata er 10 minutt gange unna Tromsø sentrum med alle restauranter og servicetilbud.
Målselvgata er 10 minutt gange unna Tromsø sentrum med alle restauranter og servicetilbud.
Det er kort vei til flere dagligvarebutikker, som Kiwi i Balsfjordgata og Eurospar ved Nerstranda med ferskvaredisk.
Det er kort vei til flere dagligvarebutikker, som Kiwi i Balsfjordgata og Eurospar ved Nerstranda med ferskvaredisk.
Umiddelbar nærhet til lysløype og turmuligheter fra boligen. Velkommen til visning!
Umiddelbar nærhet til lysløype og turmuligheter fra boligen. Velkommen til visning!