Workinntoppen 12 - En lekker 3-roms hjørneleilighet fra 2019 med etterspurt beliggenhet. Gjennomført standard, generøs takhøyde og store vindusflater. I tillegg har du utgang til sørvendt balkong med flott utsikt. Fast parkeringsplass i garasjeanle gg, samt sportsbod i bodanlegg. Fellesområdene på Workinntoppen er opparbeid med fine grøntområder, lekeplass og sittegrupper. Her har et godt bomiljø vært i fokus. Et av Tromsøs mest attraktive områder, med umiddelbar nærhet til turområder, lysløypa, busstopp og Jekta/K1. Høydepunkter: Sørvendt balkong med gode solforhold og nydelig utsikt. Parkeringsplass i garasjeanlegg. Varmtvann og oppvarming ink i felleskost. Innvendig bod + sportsbod. Gasspeis. Flotte turområder og lysløypa like ved. Moderne bygg med adkomst via heis. Gode bussforbindelser.
Prisantydning: | 6 290 000,- |
Boligtype: | Leilighet |
Eierform: | Eier (Selveier) |
Felleskostnader pr mnd: | 3 789,- |
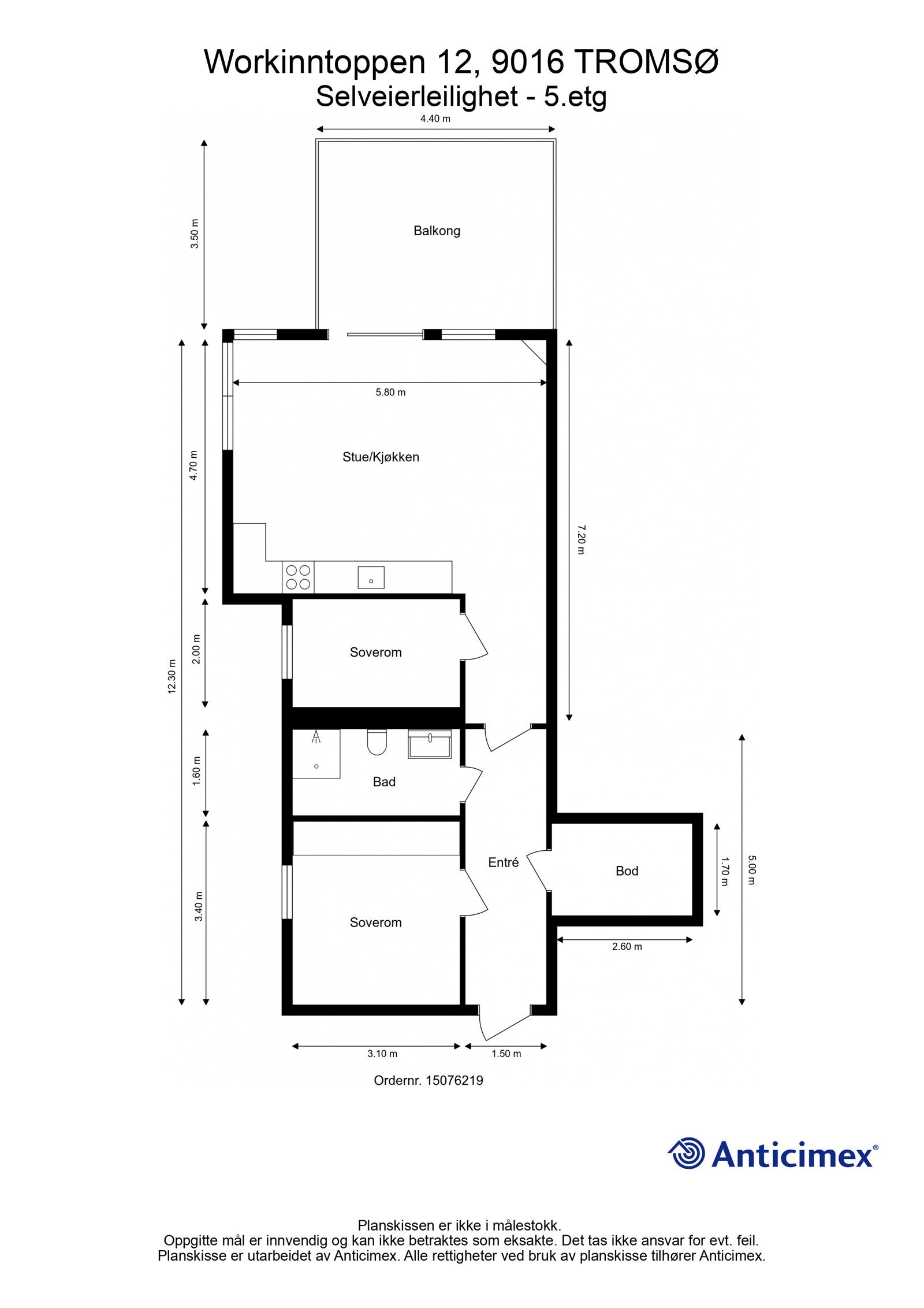
Internt bruksareal: | 68m2 (BRA-i) |
Eksternt bruksareal: | 5m2 (BRA-e) |
Balkong/Terrasse: | 16m2 (TBA) |
Soverom: | 2 |
Byggeår: | 2019 |
Energimerking: | B |
Se full beskrivelse
Eiendom | Workinntoppen 12 9016 Tromsø 5. etasje |
Oppdragsnummer | 52-25-0527 |
Totalvurdering | Workinntoppen 12 - En lekker 3-roms selveierleilighet fra 2019 med etterspurt beliggenhet. Gjennomført standard, generøs takhøyde og store vindusflater. I tillegg har du utgang til sørvendt balkong med flott utsikt. Stue/kjøkken i åpen løsning med naturlige soner for innredning, flislagt bad og to gode soverom, samt innvendig bod. Du disponerer en fast parkeringsplass i garasjeanlegg, samt sportsbod i bodanlegg. Fra garasjen går det heis helt opp til etasjen leiligheten ligger i. Fellesområdene på Workinntoppen er opparbeid med fine grøntområder, lekeplass og sittegrupper. Her har et godt bomiljø vært i fokus. Et av Tromsøs mest attraktive områder, med umiddelbar nærhet til turområder, lysløypa, busstopp og Jekta/K1. Høydepunkter: -Sørvendt balkong med gode solforhold og nydelig utsikt -Parkeringsplass i garasjeanlegg -Varmtvann og oppvarming ink i felleskost -Innvendig bod + sportsbod -Gasspeis -Flotte turområder og lysløypa like ved -Moderne bygg med adkomst via heis -Gode bussforbindelser Dette er en bolig som kombinerer moderne komfort med praktiske løsninger i et av Tromsøs mest attraktive boligområder. |
Matrikkel | Gnr. 118 bnr. 1717 snr. 19 i Tromsø kommune |
Beliggenhet | Leiligheten har en fin beliggenhet på Workinntoppen som en av Tromsøs mest populære boligområder! Her er det kort vei til dagligvarehandel, kjøpesenter, skole, barnehage og svært gode bussforbindelser. Du skal ikke gå langt for å komme deg til fantastiske friarealer som Prestvannet som byr på skøytebane og lysløype om vinteren og turstier om sommeren! Kun en liten spasertur unna finner du også Sjølundfjæra. |
Adkomst | Eiendommen har adkomst via offentlig vei. |
Tomt/beskaffenhet | Felles tomt for sameiet med asfaltert internvei, lekestativer, plenareale og diverse beplantning. |
Boligtype, og eierform | Eierseksjon Leilighet |
Byggeår | 2019 |
Areal | Primærrom: 63 kvm, Bruksareal: 73 kvm, BRA-i: 68 kvm , BRA-e: 5 kvm , TBA: 16 kvm (BRA-i) Bruksarealet av boenheten innenfor omsluttende vegger. Bruksenheten kan bestå av flere boenheter. Alle selvstendige boenheter kategoriseres som BRA-i. (BRA-e) Bruksarealet av alle rom som ligger utenfor boenheten(e), men som tilhører denne. Eks: arealer som har adkomst fra fellesarealer eller utenfra, som kjellerstuer, gjesterom, hobbyrom og boder som tilhører boenheten. (BRA-b) Bruksarealet av innglassede balkonger, verandaer og altaner som tilhører boenheten. (TBA) Arealet av terrasser, altaner, verandaer og åpne balkonger som er tilknyttet boenheten. Megler har ikke kontrollmålt arealene |
Antall rom (evt. senger) | Oppholdsrom: 1, Soverom: 2, Bad: 1, Antall rom: 3 |
Byggemåte | Boligbygg oppført i 2019. Fundamentert på ukjent byggegrunn. Støpt gulv mot grunn. Grunnmur av betongkonstruksjoner. Etasjeskillere av betongkonstruksjoner. Yttervegger av tre og murkonstruksjoner utvendig kledd med stående trekledning og murfasade. Flatt tak (taket er ikke besiktiget). Leiligheten har entredør med brannklasse B30 og lydklasse 40db. Vinduer og balkongdør med 3-lags glass. Vannrør med rør-i-rør system og synlige avløpsrør av plast. Oppvarming med vannbåren varme og gasspeis. Ventilasjon i boligen er med balansert ventilasjon. Det elektriske anlegget er i hovedsak montert som skjult anlegg. |
Ferdigattest | Det foreligger midlertidig brukstillatelse datert 29.11.2018. Det foreligger godkjenning på søknad om ferdigattest datert 04.06.2025. At slik attest eksisterer gir ingen garanti for at det ikke er utført arbeid på boligen som ikke er byggmeldt eller godkjent. |
Innhold | Inngår i BRA-i: Entre, bod, bad, 2 soverom og stue/kjøkken. Inngår i BRA-e: Bod Utgang fra stue/kjøkken til sørvendt balkong på ca 16 m2. Bod med adkomst via fellesareal i 2.etg på 5 m2. |
Standard | Innvendige overflater: Gulvflater belagt med flis i entre, parkett på øvrige rom. Vegg- og himlingsflater i malte flater. Profilerte innerdører. Kjøkken: Åpen kjøkkenløsning. Innredningen er fra byggeår. Glatte fronter. Benkeplate av tre. Nedfelt oppvaskkum med ett-greps kjøkkenarmatur. Benkeskapsbelysning og stikkontakter over kjøkkenbenk. Integrert stekeovn, platetopp, oppvaskmaskin og kjøleskap med fryser. Ventilator i overskap. Komfyrvakt montert. Vannrør med rør-i-rør system. Vannsensor montert. Synlige avløpsrør av plast. Fliser mellom kjøkkenbenk og overskap. Bad: Bad fra byggeår. Flislagt gulv med gulvvarme og flislagte vegger. Nedsenket himling med downlights. Takplater i himling. Vegghengt servantinnredning med skuffer. Ovenpåliggende servant med ett-greps armatur. Speil med overlys og stikkontakt over servant. Dusjhjørne med dører. Vegghengt dusjarmatur. Vegghengt toalett. Vannrør av typen rør-i-rør system. Synlige avløpsrør av plast. Mekanisk avtrekk med ventil i himling. Opplegg for vaskemaskin. Tekniske installasjoner: Tekniske anlegg fra byggeår. Vannrør med rør-i-rør system. Vannfordelingsskap med stoppekran montert i himling på bad. Synlige avløpsrør av plast. Stakeluke er ikke lokalisert. Varmtvann fra byggets sentralanlegg. Oppvarming med vannbåren varme og gassovn. Balansert ventilasjon i boligen, ventilasjonsagregat montert på bod. Fordeling av tilstandsgrader: TG 0 - Ingen avvik TG 1 - Mindre eller moderate avvik TG 2 - Avvik som ikke krever umiddelbare tiltak TG 2 - Avvik som kan kreve tiltak TG 3 - Store eller alvorlige avvik TG IU - Konstruksjoner som ikke er undersøkt TG2: - Våtrom Overflater gulv Det registreres bomlyd (tegn til hulrom) under enkelte gulvfliser. Eksakt årsak er ikke kjent. Forholdet indikerer manglende vedheft mellom flis og underlag. Fliser med bom kan løsne og være svekket mot ytre påvirkninger. Jevnlig ettersyn anbefales slik at tiltak kan iverksettes ved behov. - Elektrisk anlegg Forenklet vurdering av det elektriske anlegget Det mangler samsvarserklæring på deler av utførte arbeider på det elektriske anlegget (tilstandsgrad settes i henhold til NS3600). Med bakgrunn i ovennevnte avvik bør det gjennomføres en utvidet el-kontroll av en kvalifisert elektrofaglig person |
Møblering/utstyr | Kun integrerte hvitevarer medfølger i handelen. For all innredning i garderobeskap vil dette medfølge handelen, både løs og fast. Se vedlagt løsøre og tilbehørsliste utarbeidet av Norges Eiendomsmeglerforbund. Ta kontakt med eiendomsmegler for nærmere informasjon. |
Oppvarming | Boligen har vannbåren varme i form av gulvvarme i stue/kjøkken og gang. Forbruk fjernvarme innkreves a-konto over felleskostnadene og avregnes årlig etter reelt forbruk iht. målere. Dersom det er rom i boligen som ikke har vegg-/fastmonterte ovner, så følger det heller ikke med ovner i disse rommene. Dette avviker fra bransjenormen. |
Parkering | Leiligheten disponerer en biloppstillingsplass i felles garasjeanlegg. Gjesteparkering på oppmerkede plasser ute og inne. Betaling via app. |
Tomten | Eierform: Eiet tomt |
Vei, vann og avløp | Eiendommen er tilknyttet offentlig vannforsyning og avløpsnett via private stikkledninger. |
Regulering | Boligen er regulert til boligformål jf. Reguleringsplan datert 31.05.2017. Hensynssoner registrert på eiendommen: 8 Gul sone T-1442 0142 Eiendommen er registrert å ligge innenfor sone for flystøy. |
Sentrale lover | Handelen reguleres av avhendingsloven. |
Prisantydning | 6 290 000,- / Fellesutgifter: 3 789,- pr. mnd |
Boligkjøperforsikring | Boligkjøperforsikring: Vedlagt i salgsoppgaven følger informasjon om BoligkjøperforsikringPluss og Boligkjøperforsikring fra HELP Forsikring AS. Boligkjøperforsikring er en rettshjelpsforsikring som gir trygghet og profesjonell juridisk hjelp dersom det oppdages uventede feil eller mangler ved boligen de neste fem årene. Boligkjøperforsikring Pluss har samme dekning som boligkjøperforsikring + fullverdig advokathjelp på viktige rettsområder i privatlivet. Les mer om begge forsikringene i vedlagte materiell eller på help.no. Det gjøres oppmerksom på at meglerforetaket mottar kr 3 400 / 3 800 / 4 300,- (avhengig av boligtype) i kostnadsgodtgjørelse for hver forsikringsavtale som formidles på Boligkjøperforsikring Pluss og kr 2 400,- / 2 800,- / 3 300,- i kostnadsgodtgjørelse for Boligkjøperforsikring. |
Overtagelse | Avklares i forbindelse med budgivning. |
Oppgjør | Oppgjør mellom partene foretas av: Weboppgjør AS Pb. 2454, Drotningsvik 5834 Bergen. Tlf: 55 50 85 90 Fax: 55 50 85 99 Meglers provisjon/vederlag og utlegg betales av selger. Beløpet forfaller til betaling ved avtaleinngåelsen. |
Takst / tilstandsrapport | Takst utført av Anticimex As den 06.10.25 |
Formuesverdi | Formuesverdi primærbolig: 1 201 031,- Formuesverdi sekundærbolig: 4 804 124,- Formuesverdi gjelder for inntektsåret 2024. |
Kommunale avgifter | Kommunale avgifter: Kr. 10 544,- pr. År. Oppgitte avgifter kan være avhengig av bruk. Opplysninger er innhentet fra Gnr. 118 bnr. 1717 snr. 19 i Tromsø kommune. |
Energiforbruk | Oppvarmingskarakter Lys grønn - Energikarakter B |
Adgang til utleie | Seksjonen kan leies ut i sin helhet med godkjenning fra styret. Korttidsutleie av hele boligseksjonen i mer enn 90 døgn årlig er ikke tillatt. Med korttidsutleie menes utleie i inntil 30 døgn sammenhengende. Grensen på 90 døgn kan fravikes i vedtektene og kan i så fall settes til mellom 60 og 120 døgn. Jf. Eierseksjonsloven § 24. Seksjonseier/utleier må informere styret om at de bruker sin enhet til korttidsutleie. Seksjonseier/utleier må sørge for at nåværende og fremtidige husordensregler blir informert til leietaker. |
Sameiet | Workinntoppen 8-12 boligsameie |
Styreleder sameiet | Trygve Rønning |
Fellesutgifter | Kr 3 789,- per mnd. Fellesutgiftene fordeles på følgende poster: - Grunnleie 2 015,- - Garasje 450,- - Tilleggsytelser: Tv og internett 269,- - Sommer- og vintervedlikehold uteområdet 275,- - Lovpålagt kontroll av gasspeis 30,- - Måler: Gulvvarme: ( 4962 - 19) 400,- - Varmtvann: ( 4961 - 19) 200,- - Gass 496/19 ( 4963 - 12) 150,- Boligselskapet har avtale om Forskutterte Felleskostnader |
Fellesgjeld | ,- Fellesformue kr27 710,- |
Tinglyste rettigheter og servitutter | Følgende erklæringer er tinglyst på eiendommen: 2019/475652-1/200 Seksjonering 26.04.2019 21:00 opprettet seksjoner: snr: 19 formål: Bolig sameiebrøk: 77/7277 2019/412942-1/200 Bruksrett 08.04.2019 21:00 Rettighetshaver: Knr:5501 Gnr:118 Bnr:1709 Snr:58 Bruksrett til takterrasse Overført fra: 5501-118/1717 Gjelder denne registerenheten med flere For mer informasjon om erklæringer ta kontakt med meglerforetakets representant. |
Legalpant | Det gjøres oppmerksom på at sameiet har legalpanterett i seksjonen tilsvarende folketrygdens grunnbeløp for felleskostnader samt andre krav som skriver seg fra sameieforholdet. Kommunen har legalpant i eiendommen. Dette gjelder alle bebygde eiendommer i alle kommuner i Norge. På eiendommen kan det være tinglyst erklæringer/avtaler som for eksempel rett til kommunen til å anlegge vann og kloakkledninger inkl. reparasjon av disse. Bestemmelser om bebyggelsen, gjerder, adkomstrettigheter. Disse erklæringene/avtalene vil følge eiendommen ved salg og kan ikke slettes. |
Forsikring | If Skadeforsikring NUF Polisenummer: SP2205648 |
Budgivning | Alle bud skal inngis skriftlig til megler. Benytt "Gi bud"-knappen på våre annonser for å registrere ditt bud elektronisk. Dette er en enkel og sikker løsning som lar deg signere budet elektronisk ved hjelp av BankID. Fremgangsmåte ved budgivning: Benytt "Gi bud"-knappen for å logge inn med BankID. Din elektroniske identitet og signatur blir kontrollert som en del av innloggingen. Registrer ditt bud med korrekt beløp, frist, eventuelle forbehold, ønsket overtagelse og finansieringsplan. Bekreft at innholdet i ditt bud er korrekt ved å signere budet elektronisk. Du mottar en SMS-kvittering (skriftlig mottaksbekreftelse) når ditt bud er registrert. Registrer budforhøyelser ved å logge inn på nytt med BankID. Du kan også sende svar til SMS-kvitteringen for å registrere budforhøyelser. Vær oppmerksom på at bud gitt via SMS må behandles manuelt av megler. Bud via SMS kan ikke anses som mottatt av megler før du har fått en svarbekreftelse pr SMS. Bud som ikke er skriftlig, eller som har kortere akseptfrist enn til kl 12.00 dagen etter siste annonserte visning, vil ikke bli formidlet til selger. Et bud er bindende for budgiver når budet er kommet til selgers kunnskap. Selger står fritt til å akseptere eller forkaste ethvert bud, og er således ikke forpliktet til å akseptere det høyeste budet på eiendommen. Megler skal, i den grad det er nødvending og mulig, informere de involverte i budrunden skriftlig om status i budgivningen. Megler er forpliktet til å legge til rette for en forsvarlig avvikling av budrunden, og for at budene skal kunne bli behandlet og videreformidlet skriftlig til alle involverte parter, må ethvert bud ha en tilstrekkelig lang akseptfrist. Selger må skriftlig akseptere budet før budaksept kan formidles til budgiver. Budforhøyelser skal derfor ha akseptfrist på minimum 30 minutter fra budet inngis. Selger og kjøper har krav på å få utlevert kopi av budjournalen straks etter at handel er kommet i stand. Alle som har inngitt bud på eiendommen kan på forespørsel få en kopi av anonymisert budjournal etter at budrunden er avsluttet. For øvrig vises til det Forbrukerinformasjon om budgivning , som er vedlagt salgsoppgaven. |
Lovanvendelse | Eiendommen selges etter reglene i avhendingsloven. Eiendommen skal overleveres kjøper i tråd med det som er avtalt. Det er viktig at kjøper setter seg grundig inn i alle salgsdokumentene, herunder salgsoppgave, tilstandsrapport og selgers egenerklæring. Kjøper anses kjent med forhold som er tydelig beskrevet i salgsdokumentene. Forhold som er beskrevet i salgsdokumentene kan ikke påberopes som mangler. Dette gjelder uavhengig av om kjøper har lest dokumentene. Alle interessenter oppfordres til å undersøke eiendommen nøye, gjerne sammen med fagkyndig før bud inngis. Kjøper som velger å kjøpe usett kan ikke gjøre gjeldende som mangel noe han burde blitt kjent med ved undersøkelsen. Dersom det er behov for avklaringer, anbefaler vi at kjøper rådfører seg med eiendomsmegler eller en bygningssakyndig før det legges inn bud. Hvis eiendommen ikke er i samsvar med det kjøperen må kunne forvente ut ifra alder, type og synlig tilstand, kan det være en mangel. Det samme gjelder hvis det er holdt tilbake eller gitt uriktige opplysninger om eiendommen og dette har virket inn på avtalen. En bolig som har blitt brukt i en viss tid, har vanligvis blitt utsatt for slitasje og skader kan ha oppstått. Slik bruksslitasje må kjøper regne med, og det kan avdekkes enkelte forhold etter overtakelse som nødvendiggjør utbedringer. Normal slitasje og skader som nødvendiggjør utbedring, er innenfor hva kjøper må forvente og vil ikke utgjøre en mangel. Boligen kan ha en mangel dersom det er avvik mellom opplyst og faktisk areal, forutsatt at avviket er på 2% eller mer og minimum 1 kvm. Ved beregning av et eventuelt prisavslag eller erstatning må kjøper selv dekke tap/kostnader opptil et beløp på kr 10 000 (egenandel). Dersom kjøper ikke er forbruker selges eiendommen som den er , og selgers ansvar er da begrenset jf. avhl. § 3-9, 2. pktm. Informasjon om kjøpers undersøkelsesplikt, herunder oppfordringen om å undersøke eiendommen nøye, gjelder også for kjøpere som ikke anses som forbrukere. |
Hvitvasking | Alle eiendomsmeglerforetak er fra 01.01.2018 underlagt lov om hvitvasking. Dette innebærer at de har plikt til å melde fra Økokrim om evt. mistenkelige transaksjoner. |
Vedlegg | Til denne salgsoppgave kan det følge viktige vedlegg, som er en del av salgsdokumentene. Hvis salgsoppgaven er skrevet ut fra internett må kjøper også selv skrive ut vedlegg eller ta kontakt med meglerforetaket for å få disse. Vedlegg til salgsoppgaven er: Tilstandsrapport Selgers egenerklæringsskjema Boligopplysninger Vedtekter Husordensregler Midlertidig brukstillatelse Reguleringsplan Energiattest Nabolagsprofil Budskjema med informasjonsskriv Det gjøres oppmerksom på at salgsoppgaven ikke er komplett uten alle vedlegg. Ta kontakt med meglerforetakets representant dersom du mener at noen av vedleggene mangler. |
Mangler | For nærmere opplysninger om mangler se vedlagt tilstandsrapport og selgers egenerklæring som følger vedlagt salgsoppgaven. Vi oppfordrer alle til å ta med bygningskyndig fagmann for nærmere gjennomgang av eiendommen |
Diverse | Selger opplyser om følgende i egenerkløringsskjema: - Har det vært feil på bad, vaskerom eller toalettrom? Det ble tidligere avdekket knekte fliser på veggen, defekt LED-armatur i speilet og riper i gulvet. Disse forholdene ble reklamert inn til utbygger, og alle feil og mangler er nå utbedret av Consto AS. I tillegg har Consto AS lagt ny fuge i dusjen, ettersom den opprinnelige var vasket bort, samt montert nye dørlister og utført arbeider med nye fuger og silikon. Utført i 2019. - I din leilighet, er det utført arbeid på tak, yttervegg, vindu eller annen fasade? 2020, Det er montert to uttrekkbare sidemarkiser i panelet på ytterveggen, samt to varmelamper i fasadeplaten på balkongen over skyvedøren. De uttrekkbare sidemarkisene ble installert i 2019, og varmelampene i 2022. - Har det vært feil på det elektriske anlegget? Belysningen på kjøkkenet har hatt feil med driverne. Arbeidet er rapportert til utbygger, og alle feil og mangler er utbedret av kjøkkenleverandøren HTH. - Er det utført arbeid på det elektriske anlegget? 2019, Feil og mangler er utbedret av kjøkkenleverandøren HTH. Arbeidet er utført i perioden 2019- 2024. 2024, Montering og installasjon av elbillader (Zaptec Pro) inkludert tilkobling via heis. JM Hansen AS. - Er det tegn på setningsskader eller sprekker i for eksempel grunnmur eller fliser? Det har vært tørkesprekker i taket i stuen og på gjesterommet. Consto har hatt malere inne som har utbedret sprekkene som en del av reklamasjonen på leiligheten. Arbeidet kan dokumenteres. - Er det utført radonmåling? Det er gjort vurderinger av radon i forbindelse med reguleringsplanarbeidet i 2013. I omregulering av Workinntoppen, risiko- og sårbarhetsanalyse, vurderes området som aktuelt for radonforekomst (lav sannsynlighet, men middels konsekvens). Risikoen er dermed klassifisert som lav/moderat. - Har ufaglærte utført arbeid som normalt bør utføres av faglærte? Du trenger ikke gjenta noe du allerede har nevnt. - Utskifting av lysbrytere til dimmere i alle rom - Utskifting av lamper levert av utbygger og oppheng av nye - Montering av skinnebelysning i tak - Installering av spotter i mellomgang (to stk.) og boden i gangen (to stk.) - Flytting av stikkontakt inn i skap og montering av lys på toppen av skap på hovedsoverom - Plassbygd garderobe fra IKEA i boden i gangen, tilpasset rundt ventilasjonsskap samt vann- og strømskap - Plassbygd garderobe fra HTH på hovedsoverom - Legging av fliser på kjøkken - Etablering av belysningspunkt over spisebord - Montering av gardinskinner i tak på soverom og kjøkken/stue - Montering av lameller på soverom og kjøkken/stue - Montering av skistativ på vegg i bod Selger har kjøpt boligselgerforsikring hos Gjensidige. Forsikringen dekker selgers mangelsansvar etter avhendingslova i 5 år etter overtagelse. Krav rettes direkte til forsikringsselskapet. |
Forkjøpsrett | Ingen forkjøpsrett. |
Visning:
Bli kontaktet:

















































